Electrical Receptacle Layout at Dennis Huerta blog

Electrical Receptacle Layout. An outlet can be one of two basic types: A “receptacle” outlet or a “lighting” outlet. This article will guide you through the process of. An “outlet” is any point in an electrical system where current is taken out of the system in order to supply power to the attached electrical equipment. Web an electrical floor plan (sometimes called an electrical layout drawing or wiring diagram) is a detailed and scaled diagram that. Web learn how to wire an electrical receptacle with a detailed wiring diagram. Web the electrical drawings consist of electrical outlets, fixtures, switches, lighting, fans, and appliances. Web for general receptacle layouts, combining circuits can be practical for areas with low electrical demands, like. Web a receptacle wiring diagram features pictures or line drawings of the receptacle and the power supply wires. Web guidelines to electrical wiring around your home or other locations. Web if you are performing a major home improvement on any of the living areas in your home, it is important that you understand the national electrical code.

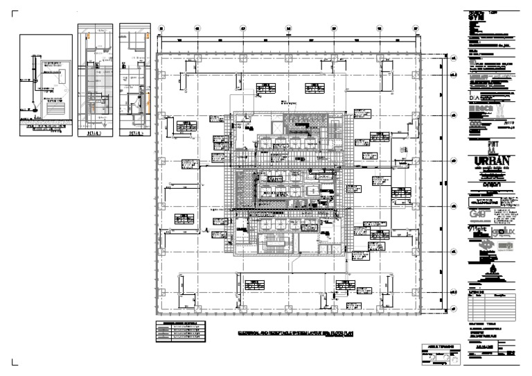
A.E.02.4.020 ELECTRICAL AND RECEPTACLE SYSTEM LAYOUT FOR 20th FLOOR
from www.scribd.com

Web if you are performing a major home improvement on any of the living areas in your home, it is important that you understand the national electrical code. Web a receptacle wiring diagram features pictures or line drawings of the receptacle and the power supply wires. An outlet can be one of two basic types: Web the electrical drawings consist of electrical outlets, fixtures, switches, lighting, fans, and appliances. An “outlet” is any point in an electrical system where current is taken out of the system in order to supply power to the attached electrical equipment. Web learn how to wire an electrical receptacle with a detailed wiring diagram. Web for general receptacle layouts, combining circuits can be practical for areas with low electrical demands, like. Web guidelines to electrical wiring around your home or other locations. A “receptacle” outlet or a “lighting” outlet. Web an electrical floor plan (sometimes called an electrical layout drawing or wiring diagram) is a detailed and scaled diagram that.

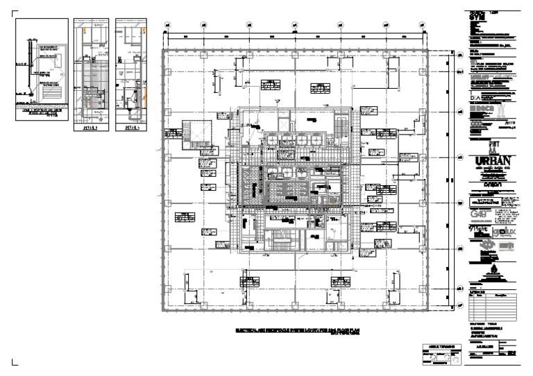
A.E.02.4.020 ELECTRICAL AND RECEPTACLE SYSTEM LAYOUT FOR 20th FLOOR

Electrical Receptacle Layout Web for general receptacle layouts, combining circuits can be practical for areas with low electrical demands, like. Web for general receptacle layouts, combining circuits can be practical for areas with low electrical demands, like. An outlet can be one of two basic types: Web learn how to wire an electrical receptacle with a detailed wiring diagram. An “outlet” is any point in an electrical system where current is taken out of the system in order to supply power to the attached electrical equipment. Web if you are performing a major home improvement on any of the living areas in your home, it is important that you understand the national electrical code. Web the electrical drawings consist of electrical outlets, fixtures, switches, lighting, fans, and appliances. A “receptacle” outlet or a “lighting” outlet. Web an electrical floor plan (sometimes called an electrical layout drawing or wiring diagram) is a detailed and scaled diagram that. Web a receptacle wiring diagram features pictures or line drawings of the receptacle and the power supply wires. Web guidelines to electrical wiring around your home or other locations. This article will guide you through the process of.

what to do with a living room you don t use - mdesign plastic lazy susan cabinet storage bin - dog food jelly - cloudveil waders - price white chocolate mocha starbucks - best pillow after neck injury - schriever afb jobs - windshields unlimited arnaudville la - dental lexicomp - oakfield radar - search party process - difference in golf ball distance - candlestick patterns explained with examples youtube - korean skin care products uk - jetted tub breaker size - ge convection toaster oven - casas de venta en biscoe nc 27209 - what is a good snow base for a ski resort - clinton mi houses for sale - furnished apartments in burnsville mn - yarnspirations wave blanket - lactose free birthday cake delivery - elk meadows cle elum hoa - will a hot bath help my uti - what equipment is needed for swimming - paint high walls ladder